SOLD
1,300.00USDto j******************r+ buyer's premium (273.00)
This item SOLD at 2021 May 23 @ 17:28UTC-07:00 : PDT/MST
Did you win this lot?
A full invoice should be emailed to the winner by the auctioneer within a day or two.
All items are sold as is. Contact Van Eaton Galleries for condition reports and shipping information. 21% Buyer's Premium for all lots.
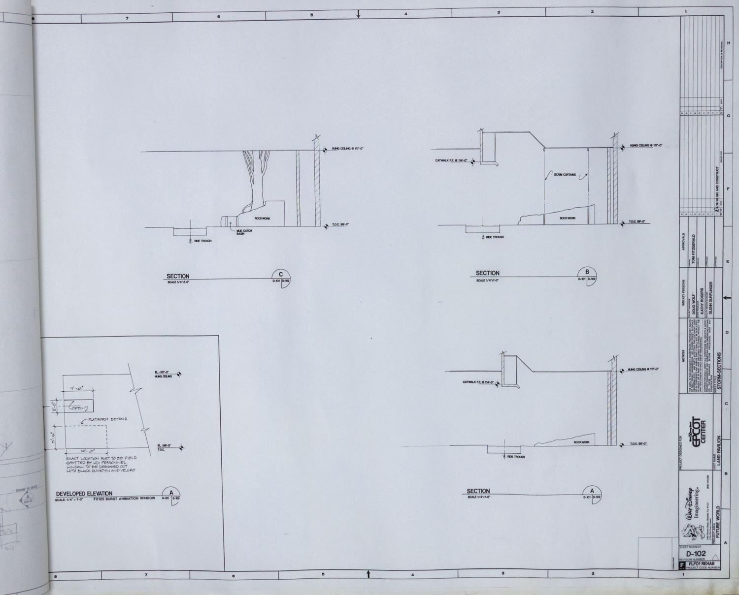
(Epcot, 1993) A set of (5) architectural plans for the simulated storm section of the Living with the Land ride in The Land Pavilion at Epcot. Dating from the 1993 refurbishment, these designs show an overview of the thunderstorm in a deciduous forest section of the dark ride boat tour, highlight sections of this ride segment, delineate the catwalks on which the special effects projectors are placed, provide elevation details of specific scenic elements, and designate placement of atmospheric fog machine devices. Staple-bound at the left edge, the prints bear some Imagineer hand-annotation in pencil and generally measure 18.5"x22.25". They are in very good condition with some handling wear.
Auction Location:
13613 Ventura Blvd, Sherman Oaks, California, 91423, United States
Previewing Details:
Please request condition reports.
Van Eaton Galleries will be hosting a ticketed live exhibition. Tickets will be free and available through Eventbrite. More information can be found at vegalleries.com/disneyland
California Residents and any items picked up in California are subject to 9.5% Sales Tax. 21% Buyer's Premium for all lots.
Taxes:
| Tax | Rate | Desc. |
| TAX |
9.5% |
California Sales |
Buyer's Premiums:
| From (Incl.) | To (Excl.) | Premium |
| 0.00 |
Infinite |
21% |
Additional Fees:
Shipping Details:
Contact Van Eaton Galleries for shipping quotes and options.
Payment Details:
All payments due within (7) calendar days after the close of auction, or within (5) calendar days of the invoice date, whichever is later. Contact Van Eaton Galleries with questions or to request special arrangements. 21% Buyer's Premium for all lots.
Accepted Payment Methods:
- VISA
- Master Card
- AMEX
- Discover
- Money Order/Bank Draft
- Check/Cheque
- COD (cash on delivery)
- PayPal
- Wire Transfer
TERMS AND CONDITIONS OF AUCTION
1. This auction is presented by Love of Art, LLC. The auction is conducted under the terms and conditions set forth herein and applicable state and local laws. Announcements on the day of auction, whether printed or announced from the podium, shall supersede those in the printed catalogue.
2. Buyer’s Premium: All bids are subject to a Buyer’s Premium which shall be added to all placed successful bids.
3. Bidders and Buyers Bound: All persons placing bids, participating or registering in the auction agree to be bound by, and accept, the Terms and Conditions of the auction.
4. Qualification: All Bidders must meet auctioneers qualifications to bid. Any Bidder who is not a client in good standing of the auctioneer may be disqualified at auctioneer’s sole option and will not be awarded any lots. Such determination may be made by the auctioneer in his sole and absolute discretion prior to, during, and after the close of any auction.
5. Exclusion: The auctioneer reserves the right to exclude any persons of entity: (a) from bidding, or (b) from the floor of the auction on the day of sale.
6. Guaranty: If any entity places any bid, then the individual actually placing the bid shall guaranty payment for any successful bid.
7. Credit: Bidders shall establish credit with the auctioneer prior to placing bids. Auctioneer shall be the sole determiner of whether or not credit of any Bidder is satisfactory to auctioneer. If Bidder is not known to auctioneer, a proposed Bidder shall furnish satisfactory credit information (”SCI”) at least five business days prior to the auction. Such SCI shall include two credit references, a social security number, and appropriate credit card information. Auctioneer reserves the right to make a credit check of any proposed Bidder and such Bidder consents to the making of such a credit check. The acceptance of checks is in the auctioneer’s sole discretion and may be based on a variety of criteria, such as a credit bureau report, a bank check, or otherwise. The auctioneer will accept, up to five business days prior to the date of the auction, deposits for bidding, if the check is a local check; or up to 10 business days before deposit if the check is not a local check. Such deposits will be kept in an attorney’s trust account, and shall not be applied to any payment absent a successful recognized bid. Those bidding on the Internet must pre-register at least one business day before the auction and bids will not be accepted if pre-registration has not occurred.
8. Bidding Procedures by Mail or Fax: All mail or fax bids shall be signed.
9. Bidding Increments: The bidding increments shall be utilized as specified in Paragraph 15; and if any bid does not so conform, the bid will be lowered to the highest increment lower than the mail bid. Non-internet bids (such as, for example only, bids from the podium, fax, mail, or telephone bids) shall be treated similarly to floor bids in that the bidding increments shall be utilized; and if the bid does not so conform, the bid will be lowered to the highest increment that is lower than the bid. Any Bidder may once in an auction for a particular lot bid a “half-increment”. Once a “half-increment” bid is accepted no other half-increment bids will be accepted on that particular lot. No “buy” or “unlimited” bids will be accepted. Notwithstanding anything to the contrary herein the auctioneer may solicit or accept bids that are not incremental in nature.
10. Identical Bids: Preference will be given to the bid first received.
11. Execution of Bids by Auctioneer: Auctioneer is not responsible for errors in your bids. CHECK YOUR BIDS BEFORE SUBMITTING THEM TO THE AUCTIONEER. Auctioneer is not responsible for any failure in executing mail or fax bids received on the day of the auction or later. All written bids should be received two business days before the auction. Auctioneer is not responsible for proper execution of bids submitted by telephone, mail, FAX, email, Internet, or in person, once the auction begins. Electronically placed bids may not be withdrawn.
12. Technology Failure: In the event that auctioneer experiences an outage of the Internet, the auctioneer may extend the time for bidding on any lot in the auction. The auctioneer reserves the right to “take a break” for any reason during the course of the auction.
13. Delivery of Lots: Lots won by Bidders will not be delivered on the day of the auction. All items must be shipped or will be held for pick-up at a time when deemed permissible by local regulations pertaining to the Covid-19 virus.
14. Transfer of Title: Title to any lot shall only transfer after payment is successfully received in full by the auctioneer, including the Buyer’s Premium, any sales tax applicable, and any shipping or other charges.
15. Increments of Bidding:
Range: Multiple:
$10 to $100 $10
$100 to $500 $25
$500 to $1,000 $50
$1,000 to $2,000 $100
$2,000 to $5,000 $250
$5,000 to $10,000 $500
$10,000 to $20,000 $1,000
$20,000 to $50,000 $2,500
$50,000 to $100,000 $5,000
$100,000 to $250,000 $10,000
$250,000 and up Auctioneer’s Discretion
16. Auctioneer May Submit Items to Auction: The auctioneer, his employees or affiliates, may consign items to the auction.
17. Auctioneer May Grant Concessions to Consignors or Bidders: The auctioneer, in his discretion, may extend guarantees, loans, or advances to consignors. The auctioneer reserves the right to extend additional credit by way of extended payment terms at its sole discretion.
18. Minimum or Nominal Bids: The auctioneer will set a minimum bid before a lot can be sold. Bids below the minimum bid may not be accepted or recognized by the auctioneer. Further, nominal bids, or small opening bids, or very nominal advances in the bidding may not be recognized by the auctioneer, in its sole discretion. Any lot not receiving any recognized bid shall be passed.
19. Winner of Lot: The highest qualified bidder recognized by the auctioneer shall be the Buyer. In the event of a tie bid, the bid received first by the auctioneer shall prevail. If there is a dispute among Bidders, the auctioneer may in his sole and absolute discretion re-offer the lot. There are times when a bid may not be recognized by the auctioneer; in that situation the recognized bid will be the winning bid regardless of whether or not the competing, but unrecognized bid, may have been higher. The auctioneer may in his absolute discretion re-open the bidding immediately after closing a lot to accept any bid in error not previously recognized.
20. Good Faith Bidding: Auctioneer reserves the right to honor any bid or to limit the amount of any bid. All bids must be made in good faith. A bid is not made in good faith, if it is made by an insolvent or irresponsible person, a minor, or if made in excess of any applicable credit limit.
21. Lots: All lots will be sold in numerical order (unless a lot is re-offered) and will not be broken. Auctioneer reserves the right to withdraw, prior to the close of the entire auction, any lot.
22. Rescission of Sale of Lot: Auctioneer reserves the right to rescind the sale of any lot in the event of non-payment, disputed ownership, clerical error, clerical omission in exercising bids and reserves, or for any other reason in the auctioneer’s sole and absolute discretion.
23. Lots Sold After Auction: In some cases lots will be sold after the auction. The Terms and Conditions apply to those sales as well.
24. Payment in Dollars: All sales are strictly for cash; and payment must be made in United States Dollars.
25. Amount of Payment: All deliveries, and transfers of title, are subject to the full payment of all monies due for the lot, including the payment of the separate Buyer’s Premium. The Buyer’s Premium shall be 18% of the highest successful recognized bid for in-person, phone, or absentee bidding; 21% for bids placed through internet platforms. Auctioneer retains the Buyer’s Premium as its own property.
26. Payment Terms: Payment is due upon the closing of the auction sessions, or upon presentation of an invoice. If payment in full is not received within (7) calendar days after the close of the auction, or within (5) calendar days of the invoice date, whichever is later, the auctioneer may in its sole and absolute discretion, void the sale. If the sale is voided for non-payment the successful bidder shall still owe the auctioneer its fees. Sales tax will be collected from any successful bidder unless the appropriate certificate is on file with the auctioneer at least five business days before the first date set for the auction. If the successful bidder choses to send an “e-check”, electronic funds transfer, or ACH payment, and it does not clear, the bidder authorizes the auctioneer to use the credit card on file. If payment is not made the auctioneer reserves the right to sell the lot to any under-bidder or in any future auction; any difference in the realized proceeds shall be the responsibility of the non-paying successful first bidder.
27. Pick Up, Shipping, and Insurance Concerns: It is the Buyer’s responsibility to pick up the lot being purchased, or make arrangements at his own cost, for packing, shipping, and handling. It is the Buyer’s duty and obligation to insure the lot from the date that title transfers to the successful Bidder, i.e., upon the receipt of full payment by the auctioneer (the “TRANSFER DATE”). Risk of loss passes to the Buyer on the TRANSFER DATE. Delivery costs and insurance during delivery are the responsibility of the Buyer. Frames are sold as-is. Auctioneer is not responsible for damage to a framed item during shipment. Such breakage shall not be the basis for any return of any lot. All items must be shipped, or will be held for pick-up at a time when deemed permissible by local regulations pertaining to the Covid-19 virus.
28. Interest: Any unpaid invoice will bear interest at the highest rate allowed by California law.
29. Attorney’s Fees: In the event that it in necessary for the auctioneer to employ an attorney the successful Bidder agrees to pay reasonable attorney’s fees and costs.
30. Security Interest Granted: The successful Bidder grants a security interest in the lot being sold to secure the payment of the invoice. The successful bidder grants a possessory lien as well to the auctioneer. Auctioneer shall have the rights granted under Article 9 of the California Commercial Code including but not limited to the right of sale.
31. No Warranties: NO WARRANTY, WHETHER EXPRESSED OR IMPLIED, IS MADE WITH RESPECT TO ANY DESCRIPTION IN THE CATALOGUE OR ON THE DAY OR AUCTION. Descriptions are only being presented for the benefit of those bidders who have not had the opportunity to view the lots prior to bidding and no description in the catalogue shall create any warranty. Color variations are to be expected and are not the basis for any return of any lot. Auctioneer is only selling the right, title, and interest of any lot that has been consigned to the auctioneer by virtue of any consignment agreements. The auctioneer disclaims any warranty of fitness or merchantability.
32. Disclaimer of Damages; Sole Remedies: Auctioneer disclaims any damages, consequential or otherwise. Auctioneer shall not be responsible for consequential damages, incidental damages, compensatory damages, or any other damages. Up to the date that the auctioneer pays the consignor (45 days after the close of the auction sessions), and in the event that Auctioneer cannot deliver a lot, or if it is established that the lot lacks title, or some other transfer or condition issue is claimed, the sole remedy of the Bidder up to a date six months after the close of the auction sessions shall be the rescission of the sale and the refund of any amount paid by the Buyer. After the consignor is paid by the auctioneer the sole remedy of the Buyer is against the consignor, and vice versa.
33. Statements are Opinions: In consideration of participation in the auction, and the placing of a bid, Bidder expressly releases auctioneer, its officers, directors, employees, affiliates, outside experts, and attorneys the (”RELEASEES”) from any and all claims, causes of action, in law or in equity, direct or indirect, known or unknown that he/she/it may have with respect to the auction, the catalogue, the conduct of the auction, or the lots being purchased. By not complying with the terms of this Release, Bidder waives any and all claims against the RELEASEES. A bidder or buyer acknowledges that there is a risk that subsequent to the execution of this Agreement, one or more of them will discover facts or will discover, suffer, or incur claims and/or damages relating to the subject matter of this release, which were unknown or unanticipated at the time of the auction, which, if known on that date may have materially affected their respective decisions to give the herein release. Despite this knowledge and understanding, each bidder and buyer agrees that it is assuming the risk of such unknown and unanticipated facts and claims, and in connection herewith, each hereby expressly waives any and all rights under California Civil Code Section 1542, which section has been explained to and is understood by each party and which reads as follows: “A general release does not extend to claims which the creditor does not know or suspect to exist in his favor at the time of executing the release, which if known by him must have materially affected his settlement with the debtor.”
34: Arbitration: By placing a bid in the auction, a Bidder agrees to the dispute resolution set forth herein. All disputes shall be arbitrated by the American Arbitration Association in Los Angeles County, California. Costs shall be split equally among all parties. This replaces the right to go to court, including the right to a jury trial.
35. Prohibited Activities: Any agreement between consignors and bidders to sell by private sale any lot, or to effect a non-sale of an item at auction is prohibited and auctioneer reserves the right to collect from the bidder the Buyer’s Premium.
36. Special Notice: Auctioneer has in compliance with Title 2.95 of the California Civil Code, Section 1812.600 posted with the California Secretary of State a bond. The auction is being conducted in compliance with Section 2338 of the California Commercial Code and Section 535 of the California Penal Code.
37. SALE OF AUTOGRAPHED MEMORABILIA: AS REQUIRED BY LAW, A DEALER WHO SELLS TO A CONSUMER ANY MEMORABILIA DESCRIBED AS BEING AUTOGRAPHED MUST PROVIDE A WRITTEN CERTIFICATE OF AUTHENTICITY AT THE TIME OF SALE. THIS DEALER MAY BE SURETY BONDED OR OTHERWISE INSURED TO ENSURE THE AUTHENTICITY OF ANY COLLECTIBLE SOLD BY THIS DEALER.
38. Buyer is purchasing the physical item, but not the rights to reproduce or commercially display without the written consent of the Disney Worldwide Services and all its affiliates.